Leírás és Paraméterek
Normál kulcsos, kétcsukású bevéső zár. Jobbosról balosra szétszerelés nélkül könnyen átállítható.
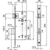
Műszaki rajz a 2. képen látható, ami a képre kattintva kinagyítható.
| Típus | Kulcsos |
| Dorn méret | 45 mm |
| Kilincs - kulcsközéptáv | 90 mm |
| Gyári kulcsok | 2 db |
Vélemények
Erről a termékről még nem érkezett vélemény.
Írja meg véleményét!

